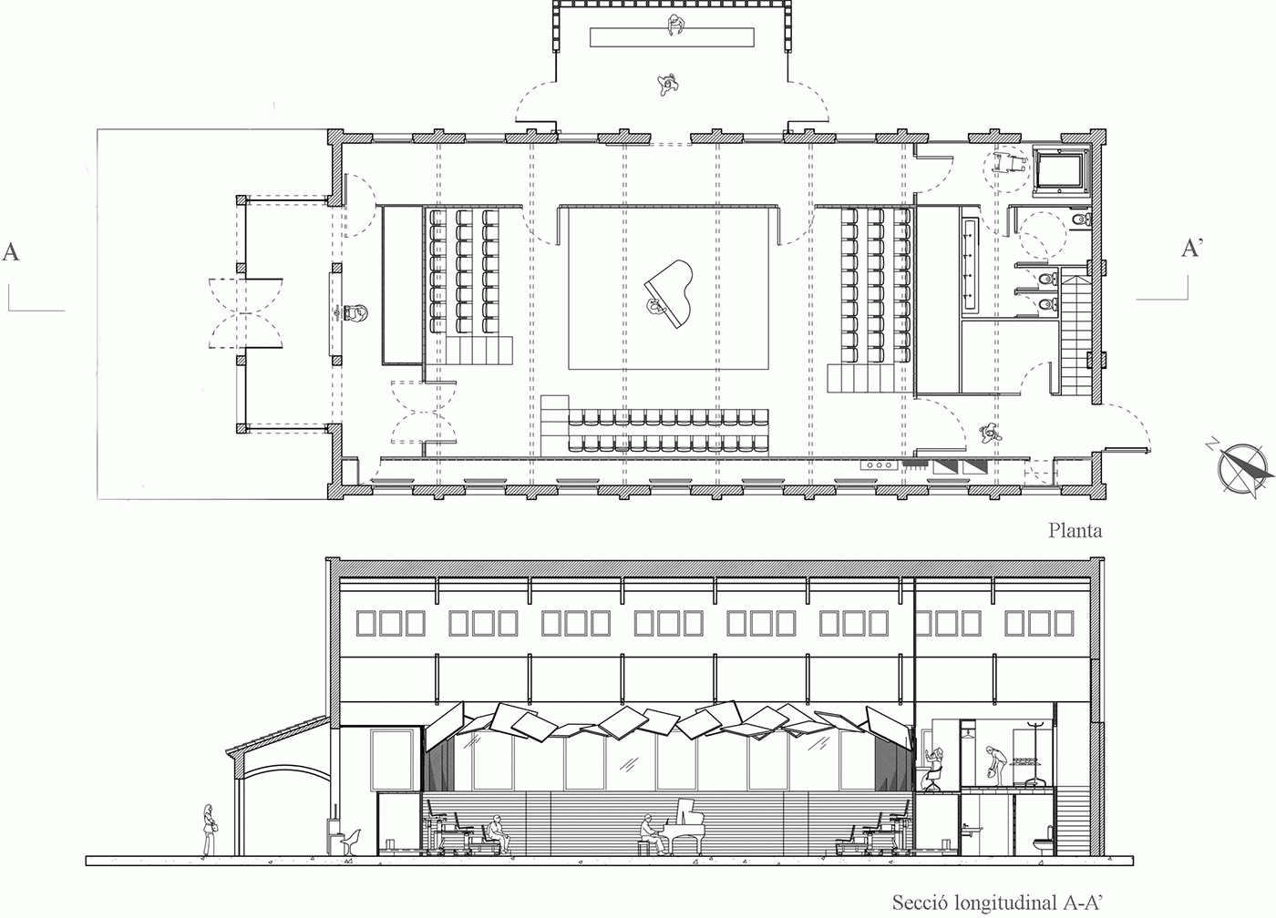
L’antic escorxador de Sitges és un edifici amb interès històric i un emblema per als suburencs. El coneixement directe de l’edifici i de la seva evolució facilita analitzar-ne les virtuts i també les mancances i cercar possibles solucions adequades a un nou ús com a equipament cultural.
La intenció és recuperar el sentit originari de l’edifici, posant èmfasi en algunes característiques que s’han deteriorat o perdut i que considero indispensables. El projecte consisteix a transformar l’edifici en un auditori modular adaptable a un ampli ventall de representacions, tant d’arts escèniques o musicals com conferències i actes. Cal, per tant, tractar les mancances de sonorització. Aquest defecte actual de l’edifici es transforma en un repte principal. La seva acústica es treballa mitjançant nous materials afegits i la posició d’aquests respecte a l’espai escènic, fins que s’aconsegueix que tota la carcassa de l’edifici acabi sent la caixa de música. L’anàlisi acústic demostra que la proposta és viable.
Així doncs, es busca treballar l’acústica a partir del disseny, respectar l’antiguitat de l’edifici i aconseguir finalment un resultat estètic i funcional.
Mar Mestres Ramon - Rehabilitació de l’antic escorxador de Sitges per convertir-lo en auditori
Mar Mestres Ramon - Rehabilitació de l’antic escorxador de Sitges per convertir-lo en auditori
Mar Mestres Ramon - Rehabilitació de l’antic escorxador de Sitges per convertir-lo en auditori
Mar Mestres Ramon - Rehabilitació de l’antic escorxador de Sitges per convertir-lo en auditori

