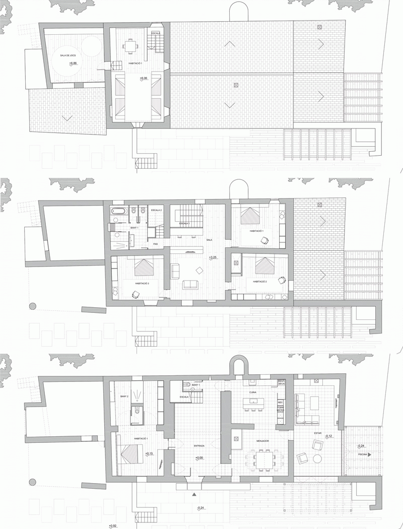
El treball planteja la reforma d’un mas del segle XV, al nord de la ciutat de Girona, que amb el pas dels anys ha perdut funcionalitat. El propòsit de la reforma és combinar els espais comuns i privats per adaptar-los al canvi de necessitats dels usuaris. Per aconseguir-ho s’ha aprofitat l’arquitectura existent i s’han tingut en compte l’entorn i la sostenibilitat, utilitzant materials autòctons i procurant que la nova construcció sigui de llarga durada. La reforma reordena l’exterior i redistribueix l’interior, de manera que habilita espais que abans estaven dedicats a funcions productives o d’emmagatzematge. Les modificacions que cal destacar són el tancament total d’un dels espais exteriors, la construcció de les noves escales i la creació d’una nova obertura a la façana posterior. En aquest projecte també es té en compte l’estalvi energètic, per això es canvien els vidres i s’aïlla la coberta per aconseguir temperatures confortables durant tot l’any.
TFG de Mariona Guanter a Eina - Reforma Can Saseres
TFG de Mariona Guanter a Eina - Reforma Can Saseres
TFG de Mariona Guanter a Eina - Reforma Can Saseres
TFG de Mariona Guanter a Eina - Reforma Can Saseres

