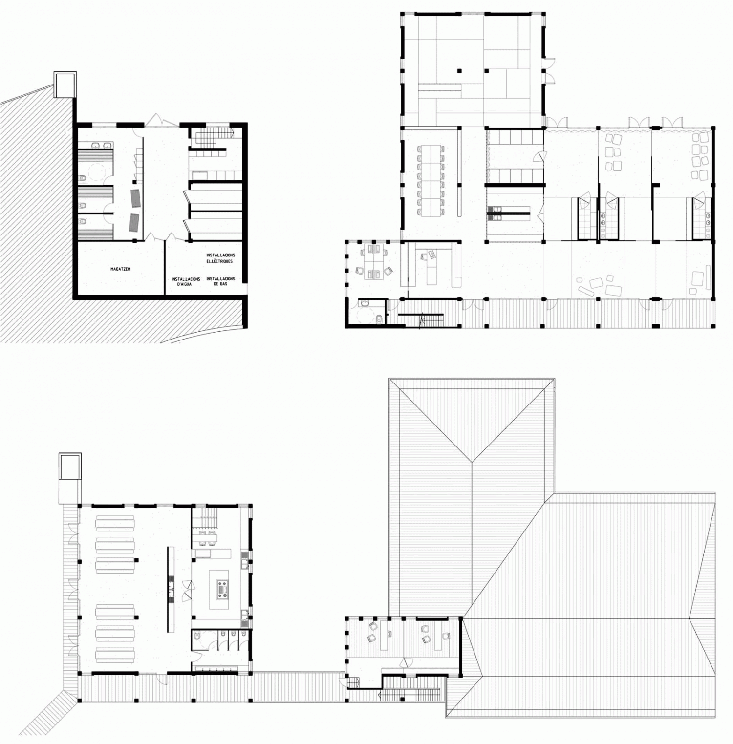
El projecte següent és una escola infantil basada en la pedagogia Waldorf, amb capacitat per a 40-50 alumnes de 0 a 6 anys. Aquesta pedagogia se centra en l’aprenentatge físic, psíquic i espiritual i per això el contacte directe amb la natura és essencial. La intenció és integrar aquesta tipologia d’escoles a una zona urbanitzada.
L’edifici consta de tres blocs: escola, administració i menjador i serveis. Els trets destacats del projecte són l’aplicació de tonalitats pastel característiques de la pedagogia, i la utilització de materials naturals com el pi i les fibres vegetals i d’altres materials com el formigó i el vidre. L’objectiu funcional és aconseguir una màxima flexibilització de l’espai per portar a terme les diferents activitats col·lectives. Quant a les divisions, s’ha jugat amb la seva mobilitat i amb les transparències per obtenir espais tan diàfans com fos possible amb interconnexió entre si.
A l’exterior hi ha cinc zones: l’aparcament, la zona d’espera, el pati interior, la zona d’horts infantils i la tanca musical per potenciar l’experimentació de l’infant amb la natura, a més d’una prolongació de color a la façana que integra el projecte al paisatge.
Mireia Alentorn Puigvert - Escola experimental, pedagogia Waldorf. Aula U
Mireia Alentorn Puigvert - Escola experimental, pedagogia Waldorf. Aula U
Mireia Alentorn Puigvert - Escola experimental, pedagogia Waldorf. Aula U

