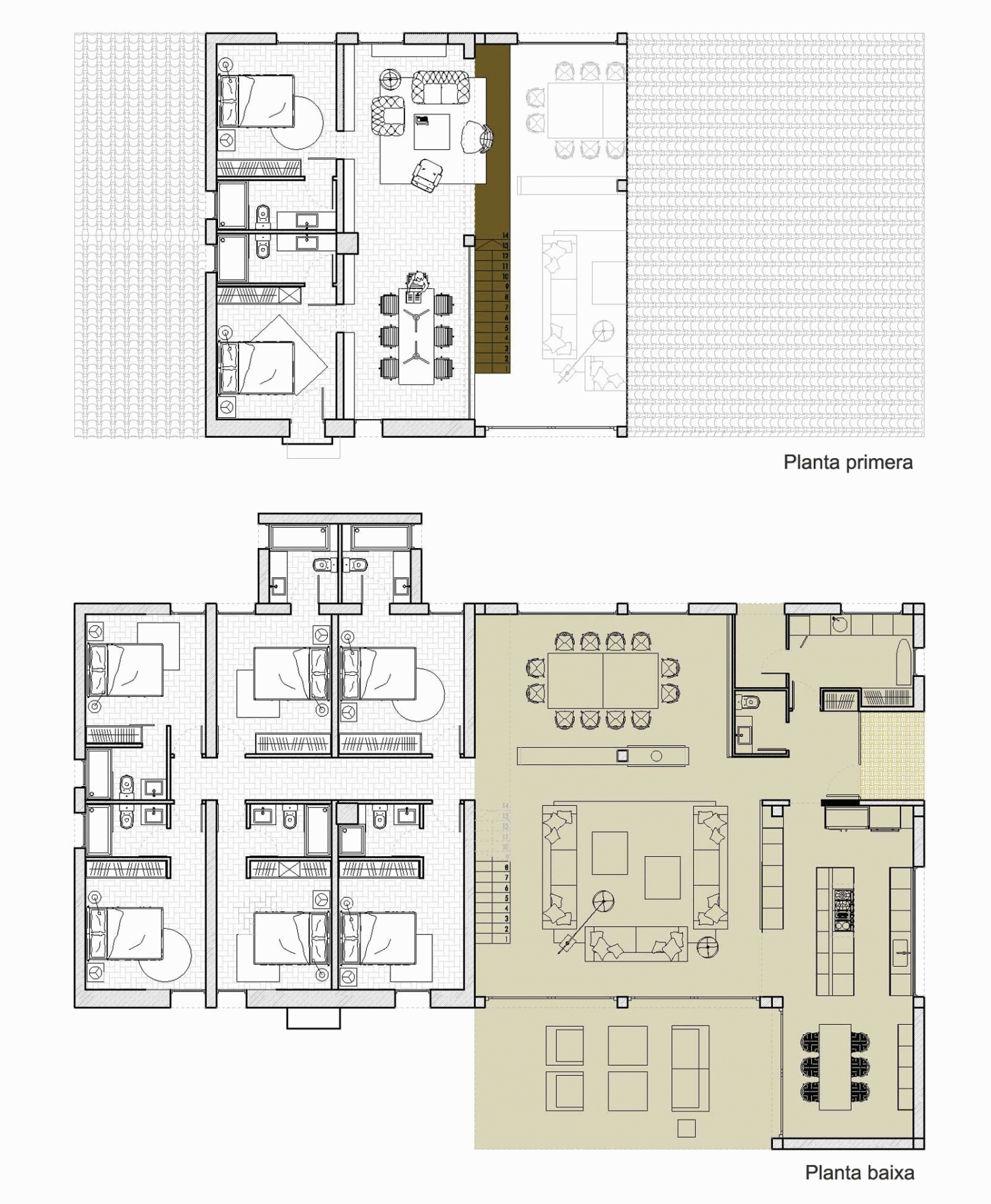
L’objectiu del projecte és habilitar una torre situada a l’horta de Lleida com a gran punt de reunió per a una família molt nombrosa. Es busca crear un lloc per a una agradable i còmoda convivència.
La intenció és reinterpretar l’estructura de la típica casa de pagès prenent l’espai de la cuina, el menjador i la sala com a centre de la casa; reestructurar l’habitatge afegint als usos habituals la distribució de la vida familiar tradicional (grans espais comuns, petits recintes privats), tot plegat amb una estètica actual.
A l’hora de plantejar el projecte s’han tingut en compte una sèrie de premisses indispensables com ara la comoditat, l’aprofitament de l’espai i la connexió entre els diferents àmbits. Tot això ha donat com a resultat un conjunt de matisos compensats en què la interrelació entre els habitants i els usos es realitza de forma natural. D’aquesta manera és possible cuinar, menjar i relaxar-se en un mateix ambient, alhora que l’interior es relaciona amb l’exterior a través de grans vidrieres, que permeten l’entrada de llum natural i la relació directa interior-exterior. Es vol combinar i contrastar el que és antic i el que és nou combinant materials com ara la fusta, el ferro, la rajola de fang, el vidre i el ciment polit.
Blanca Gardeñes - Rehabilitació d’una Torre a l’Horta de Lleida
Blanca Gardeñes - Rehabilitació d’una Torre a l’Horta de Lleida
Blanca Gardeñes - Rehabilitació d’una Torre a l’Horta de Lleida
Blanca Gardeñes - Rehabilitació d’una Torre a l’Horta de Lleida

