El projecte suposa la rehabilitació d’una antiga fàbrica de moneda del segle XIII per destinar-la a espai d’ús públic: una llibreria-cafè. Està situada al Born, el barri de moda pel que fa a l’oci a Barcelona.
L’objectiu principal és donar a conèixer un espai oblidat com La Seca, un edifici que va tenir una gran importància en la seva època.
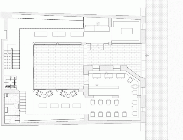
Un petit passatge interior comunica l’entrada principal en forma d’arc amb el pati central de l’edifici. Aquest, s’ha realitzat amb un paviment de pedra natural com el de la vorera, per convidar els vianants a entrar-hi i a conèixer la fàbrica per dins. L’obertura del pati interior es duu a terme per recuperar la fesomia original de l’edifici i a la vegada, per poder il·luminar gairebé tot l’espai amb llum natural.
Una altra de les característiques del projecte que cal destacar és la voluntat de mantenir l’esperit de la fàbrica. Per aconseguir-ho s’han utilitzat materials de l’època com ara el ferro i l’acer que s’han combinat amb el nou ús, la llibreria.
L’exposició dels llibres segueix la llargada de les parets mitgeres. També s’han dissenyat unes passarel·les que van paral·leles a les prestatgeries per aprofitar al màxim l’alçada de l’edifici, que en planta baixa és de cinc metres.
Marta Angrill La Seca – Llibreria-cafè
Marta Angrill La Seca – Llibreria-cafè
Marta Angrill La Seca – Llibreria-cafè
Marta Angrill La Seca – Llibreria-cafè

