Aquest projecte es basa en la reforma d’un pis de 70 m2 de distribució convencional, situat en una edificació aïllada de 18 habitatges en un barri perimetral del poble d’Abrera.
La finalitat del projecte és convertir-lo en un habitatge modern concebut com un únic espai que es transforma en funció de les necessitats i del moment del dia.
L’habitatge que s’ha de reformar presenta una distribució fragmentada i caòtica, amb estances que trossegen els espais, que tenen un ús molt concret i poc flexible.
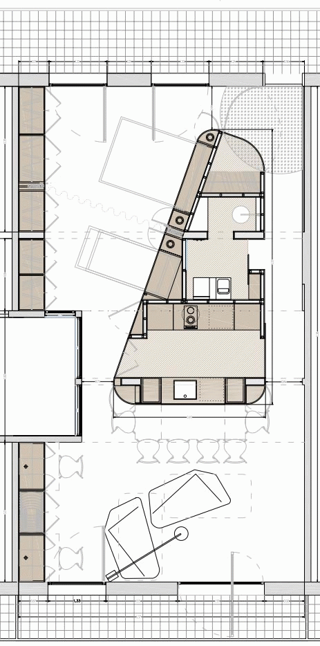
Amb la reforma es vol aconseguir centralitzar tots els usos i serveis mitjançant la ubicació d’un gran moble central no concèntric i de formes orgàniques, en contraposició al perímetre ortogonal del contenidor.
L’espai que genera aquest moble central resta com una gran sala flexible gràcies a la superposició d’usos. D’aquesta manera és possible treure el màxim potencial als escassos metres que té l’habitatge.
Aquesta gran peça està pensada com un gran ou que tot ho conté, ja que és desplegable, transformable i dóna cabuda a la cuina, el bany, el menjador, els dormitoris i altres tipus d’emmagatzematge.
Per reforçar la superfície d’emmagatzematge del moble central, en una de les mitgeres de l’habitatge es disposa longitudinalment un armari encastat.
Karma Castell
Karma Castell
Karma Castell
Karma Castell

