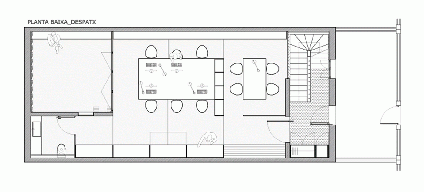
El projecte consisteix en la rehabilitació d’un habitatge del 1925 situat al passatge Tubella, al barri de Les Corts de Barcelona. El programa planteja resoldre el problema d’un habitatge reduït per a dues persones, combinat amb un estudi professional de disseny. Es tracta, doncs, d’adaptar un habitatge tradicional a l’estil de vida actual que alterna el desenvolupament de la vida privada i la tasca professional.
En la remodelació dels espais -molt compartimentats i sense llum natural- s’ha donat prioritat a la creació d’espais oberts al pati interior, circulacions fluides i a l’entrada directa de llum natural.
Així, tant a l’habitatge com al despatx, es disposa de tres grans mobles que, a més de solucionar l’emmagatzematge, generen i distribueixen els diferents espais, substituint, de fet, els envans i afavorint una circulació més lliure. En tot el conjunt predomina una austeritat cromàtica en contraposició a l’estètica noucentista de la façana i del conjunt del passatge.
Mireia Urriza - Estudi+habitatge
Mireia Urriza - Estudi+habitatge
Mireia Urriza - Estudi+habitatge
Mireia Urriza - Estudi+habitatge
Mireia Urriza - Estudi+habitatge
Mireia Urriza - Estudi+habitatge

