El projecte consisteix a habilitar una biblioteca pública per al municipi dels Hostalets de Balenyà, a la comarca d’Osona. Se situa a l’actual edifici que acull la llar d’infants i contempla una actuació interior i exterior.
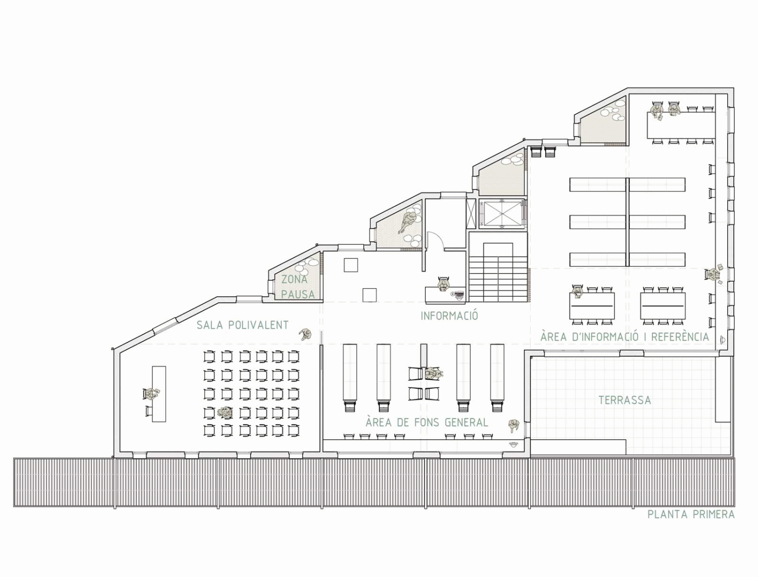
La intervenció exterior de l’edifici pretén obrir-lo a la població suprimint el tancat perimetral i tractant la façana principal (sud) com a passeig per als vianants. L’element que pren més protagonisme és el porxo lineal que ajuda a dirigir l’usuari cap a l’entrada i aporta personalitat a l’edifici. La distribució espacial interior s’organitza a partir de la modulació donada per les entrades i sortides de la dent de serra de la façana nord. Els usos més estàtics de consultes més prolongades, situats a la planta primera, se separen dels usos i les activitats més dinàmiques, situats a la planta baixa. El fals sostre interior apareix com a referent continu que travessa longitudinalment l’edifici, projecta l’espai de pas i ajuda a situar i dirigir l’usuari a l’interior de la instal·lació.
Marta Parés - El Gra d’Or, Biblioteca Municipal
Marta Parés - El Gra d’Or, Biblioteca Municipal
Marta Parés - El Gra d’Or, Biblioteca Municipal

