Es proposa la rehabilitació d’una antiga nau industrial de Gràcia per desenvolupar-hi un programa que permeti a la gent gran practicar activitats professionals i productives. El centre també inclou una ludoteca per a nens de 4 a 10 anys i promou activitats intergeneracionals.
L’àrea d’intervenció inclou dos edificis: la fàbrica al carrer Quevedo i un pàrquing contigu a la seva façana posterior, amb sortida al carrer Bailèn. Es proposa la restauració de la fàbrica per adaptar-la a l’ús proposat i l’enderroc del pàrquing per generar un espai exterior annex al centre, així com l’obertura d’un eix de circulació entre Gràcia i l’Eixample.
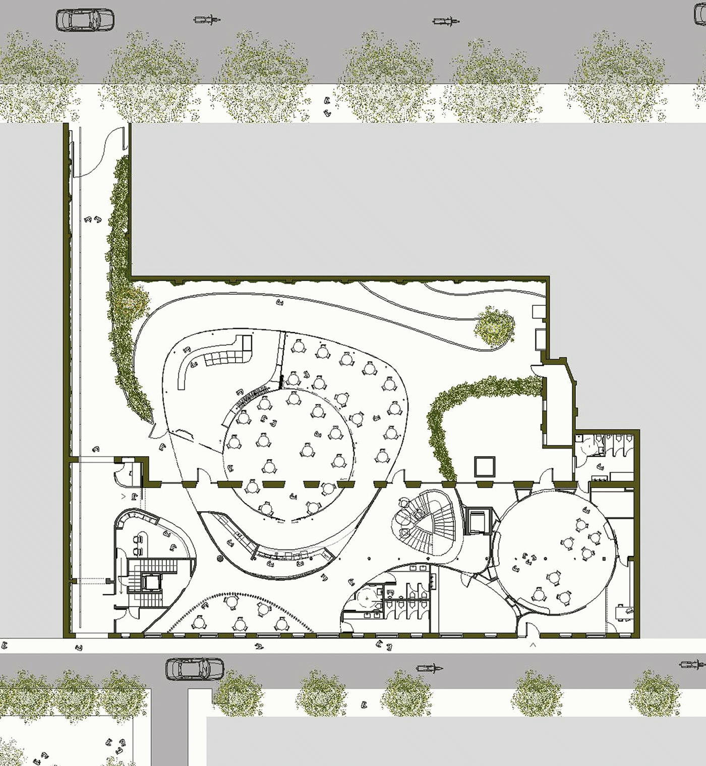
En contrast amb l’ortogonalitat del contenidor, que venia dictada per un model de gestió taylorista de productivitat màxima, es proposa una nova distribució basada en línies corbes i espais de circulació sinuosos.
El centre inclou un espai de taller, una zona de planxat de roba i costura, una cuina, una àrea de treball amb ordinador, una taula de treball sense ordinador i una zona d’horts, així com serveis de suport i administratius. A més, també compta amb una botiga per vendre els articles que s’hi produeixen i un bar amb terrassa, obert al públic en general.
Gonçalo Sousa Pinto - Centre d’activitats productives per a gent gran i ludoteca a Gràcia
Gonçalo Sousa Pinto - Centre d’activitats productives per a gent gran i ludoteca a Gràcia
Gonçalo Sousa Pinto - Centre d’activitats productives per a gent gran i ludoteca a Gràcia
Gonçalo Sousa Pinto - Centre d’activitats productives per a gent gran i ludoteca a Gràcia

