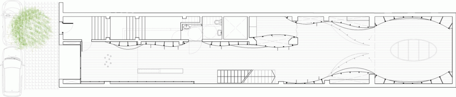
El projecte suposa el redisseny de l’empresa Pell Xavier que, a causa del creixement d’aquesta empresa majorista, ha hagut de canviar el programa de l’espai de taller i convertir-lo en la boutique barris.bcn.
L’objectiu d’aquesta proposta és crear un interiorisme que permeti que destaqui el producte d’alt refinament i de creativitat particular d’aquesta empresa: les jaquetes de pell. Per aconseguir-ho es crea una doble pell ondulada al llarg de tot l’espai que dóna un ritme d’exposició. Es vol aconseguir que els ambients interior-exterior es relacionin a partir de la combinació de materials freds, com la xapa metàl·lica lacada en blanc i l’aplacat de pissarra, i materials càlids, com la tarima de fusta de roure clar.
Laura Barris Romero - barris.bcn boutique
Laura Barris Romero - barris.bcn boutique
Laura Barris Romero - barris.bcn boutique

