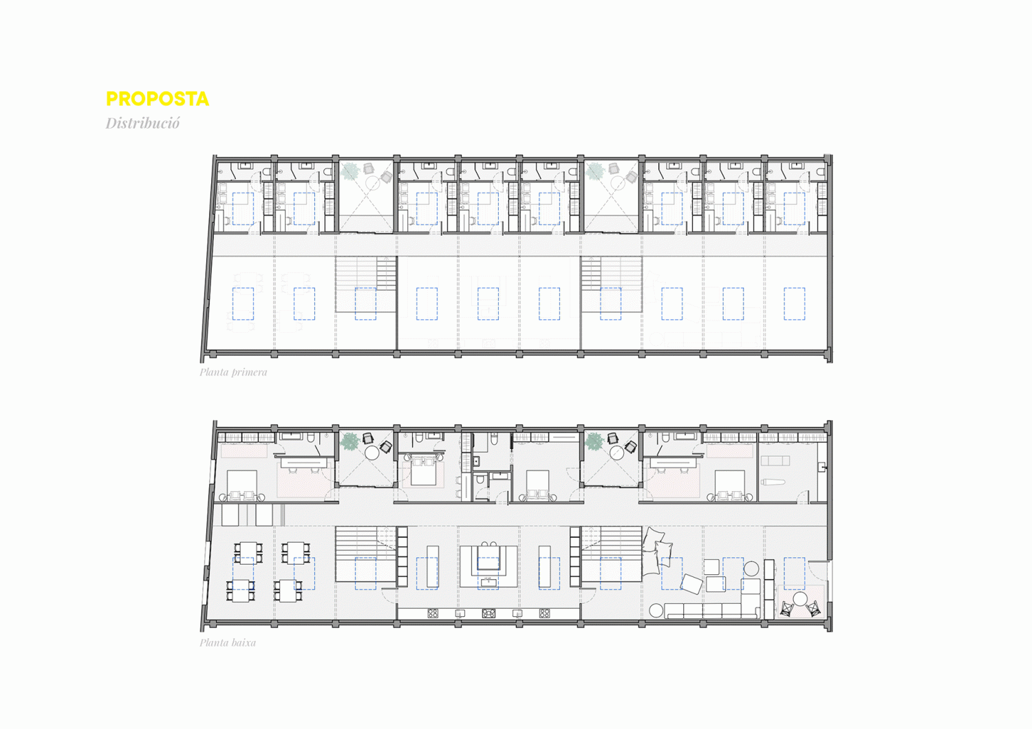
The project focuses on young people in a transition phase, from the moment of emancipation at home until their definitive insertion into adult life. Based on the problems of young people in accessing housing, the objective is to offer a viable housing option, so that they can develop their own life project and take responsibility for their own autonomy.
The design proposal presents an experience that creates places of community life, an alternative model of coexistence: the co-housing. The project starts with the remodelling of an industrial building in the neighbourhood of El Poblenou, where the concepts of privacy and collectively are the protagonists to achieve an optimal design for a specific user and a specific period.
TFG CoHabitar l'Autonomia - Clara Pujol Soler
TFG CoHabitar l'Autonomia - Clara Pujol Soler
TFG CoHabitar l'Autonomia - Clara Pujol Soler
TFG CoHabitar l'Autonomia - Clara Pujol Soler
TFG CoHabitar l'Autonomia - Clara Pujol Soler
TFG CoHabitar l'Autonomia - Clara Pujol Soler

