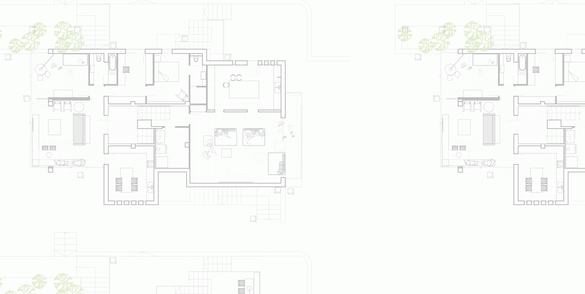
The project proposes the division of a large single-family house, located in a residential area of Matadepera, into three independent houses and some common spaces.
A project to reuse and give a second life cycle to the pre-existing house, which will provide the three families who will use the future cottages with a quality of life comparable to that of the single-family home.
The original project by the architect Joan Baca in 1971 has contributed to the structuring of the division of the three houses. These divisions are adapted to the needs of each family unit.
The project is in keeping with the culture of saving, sustainability and the use of pre-existing urban resources.
"Castellsapera, Cohabitatge a Matadepera" - Isabel Figueras Vallès
"Castellsapera, Cohabitatge a Matadepera" - Isabel Figueras Vallès
"Castellsapera, Cohabitatge a Matadepera" - Isabel Figueras Vallès
"Castellsapera, Cohabitatge a Matadepera" - Isabel Figueras Vallès

