Musa paradisíaca is the botanical name for the male banana tree and gives this restaurant project its name. This fruit is the basis of our culinary art, helping us create all kinds of meat and fish dishes, desserts and drinks and is a gentle substitute for rice, pasta, potato and bread.
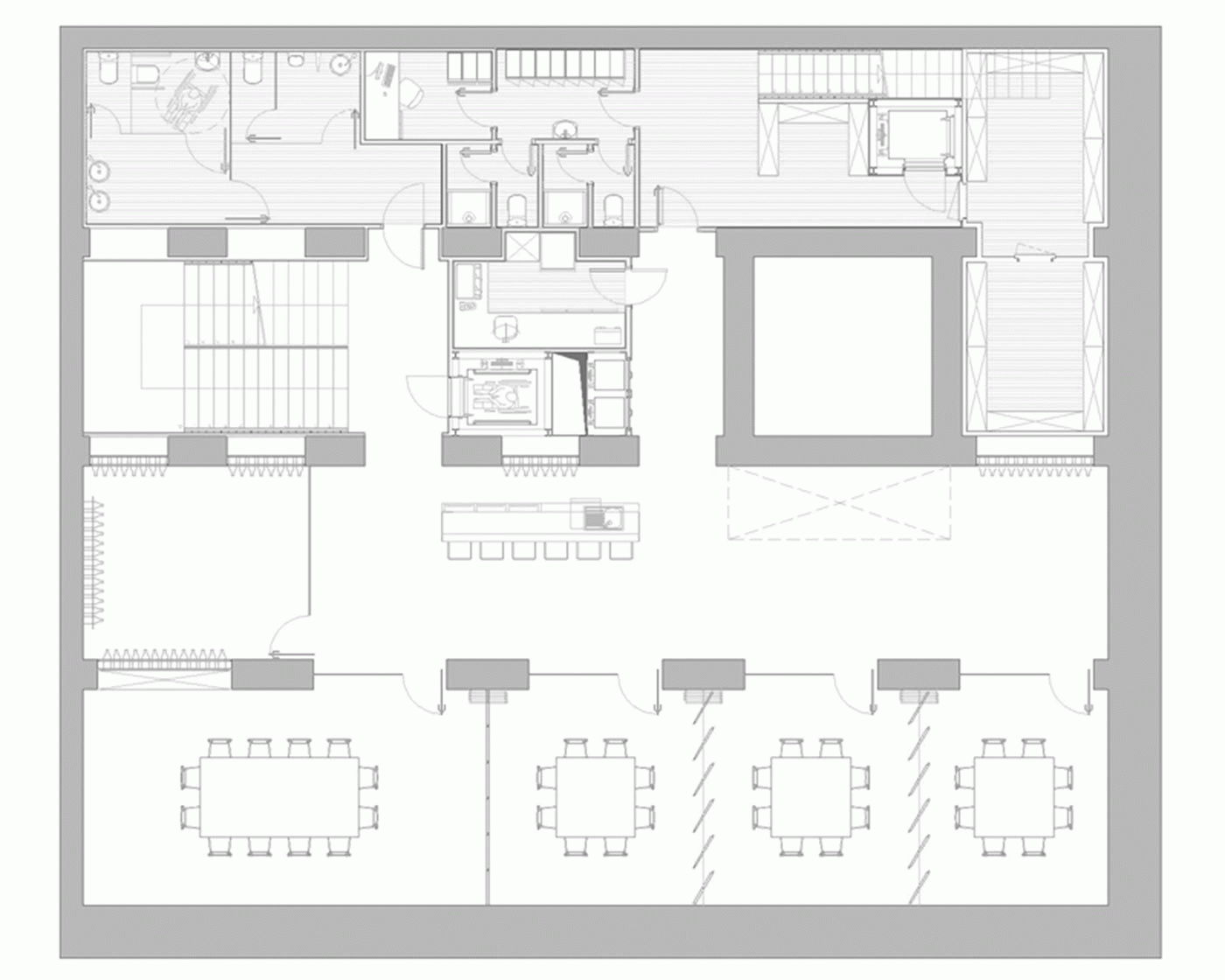
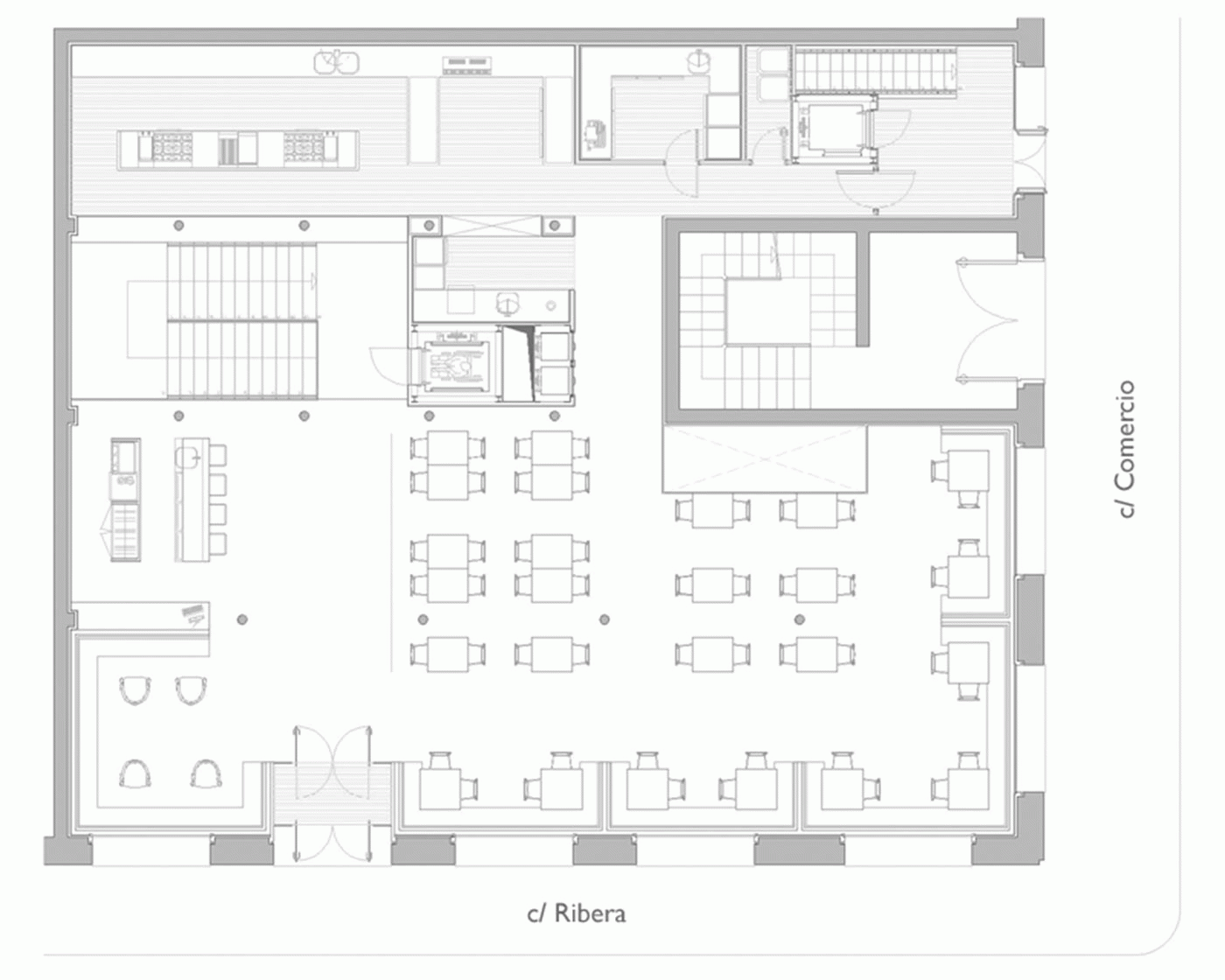
The interior design of the Musa paradisíaca restaurant appeals to the simplicity in the solutions provided and comprehensively meets the programme of needs so characteristic of a facility designed for this purpose.

