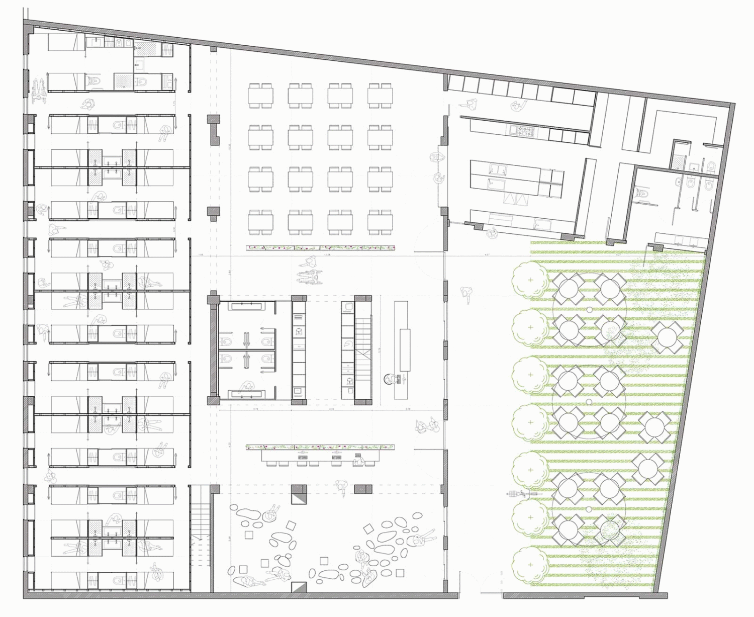
The project consists of creating a youth hostel which is currently a greenhouse and garden centre in the Sants district. The aim is to project a small city inside the present building and maintain the essence of the greenhouse using different concepts and elements that will be preserved and fostered in the youth hostel, such as the name: Greenhouse.
I have kept three concepts of the present building: the structure of the open brickwork with arches and the enormous height; the natural light that floods in through huge windows and a stunning glazed gable roof and, lastly, the natural setting created with plants, colour and smell.
The reform promotes the interior/exterior relationship and creates ambiguous spaces, where the limits are blurred with the use of the same materials, floorings and outdoor furniture and enhancing the natural light. The fact that it is a very tall building also allows me to experiment with different levels and expand and bring light to the spaces. The rooms have been arranged into three small houses inside the building, fostering the indoors-outdoors idea and a small city has been created inside the very skin of the building.

