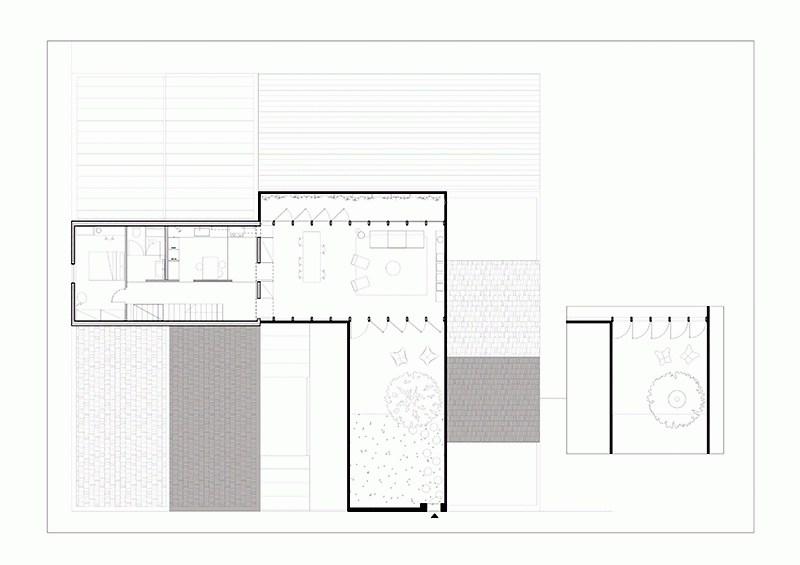
El proyecto que se plantea es la reforma de una construcción fragmentada en desuso en el Prat de Llobregat. El encargo consiste en crear una vivienda doméstica para dos hermanas que quieren volver a habitar este espacio abandonado propiedad de la familia.
El proyecto consiste en la reforma y la adaptación de una construcción y un gallinero en mal estado. La propiedad consta de una construcción que forma parte de la casa original, un anexo de construcción precaria y un jardín por donde se accede a la propiedad.
El objetivo de la rehabilitación es crear un pequeño oasis urbano y reanimar este espacio tan olvidado; convertirlo en una vivienda cómoda y confortable muy en sintonía con el entorno y con lo que significan las construcciones de la zona y, concretamente, con el parque agrario del delta del Llobregat. Se utilizarán materiales autóctonos y con personalidad, sencillos y funcionales.
Les casas del barro
Les casas del barro
Les casas del barro

